ПРОДАЕТСЯ просторная 3-комнатная квартира 63.5 кв.м.
в районе КОНЬКОВО
г. Москва, ул.Академика Арцимовича, д. 15, 3/9 этаж
Цена 13 000 000 руб.
+7 (999) 925-55-06 Екатерина
Запишитесь на просмотр прямо сейчас!
ХАРАКТЕРИСТИКИ ДОМА
г. Москва, ул.Академика Арцимовича, д. 15
1. Округ: Юго-Западный
2. Ближайшие станции метро: Беляево, Коньково
3. Район: Коньково
4. Серия дома: II-57-А/09
5. Год постройки: 1967
6. Тип дома: панельный
7. Этажность: 9
8. Подъездов: 5
9. Лифт: 2 пассажирских
10. Управляющая компания: ГБУ "Жилищник района Коньково"
Дом расположен в одном из самых экологически чистых районов города Москвы, в окружении Ландшафтного заказника Теплый Стан и Яблоневого сада, в котором каждый год в большом количестве зреют яблоки и груши.
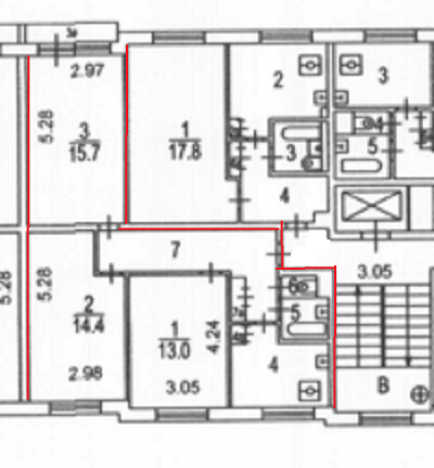
ПАРАМЕТРЫ КВАРТИРЫ и ТЕХНИЧЕСКОЕ ОСНАЩЕНИЕ
Общая площадь: 62,9 кв. м.
Спальня: 13 кв.м.
Детская: 14,4 кв.м.
Гостинная: 15,7 кв.м.
Кухня: 7 кв.м.
Этаж: 3
Высота потолка: 2.58 м.
Окна: стеклопакеты .
С\узел: совмещенный .
Комнаты изолированные.
Окна квартиры выходят на две стороны, в тихий полисадник.

Квартира газифицирована.
Домофон .
ПЛАНИРОВКА КВАРТИРЫ
Tilda Publishing
3D-тур по КВАРТИРЕ
ФОТОГАЛЕРЕЯ
ГОСТИНАЯ, СПАЛЬНЯ
КУХНЯ, КОМНАТА
САНУЗЕЛ и КОРИДОР
ВИД ИЗ ОКОН, ВХОДНАЯ ГРУППА и ТЕРРИТОРИЯ
ИНФРАСТРУКТУРА для КОМФОРТНОГО ПРОЖИВАНИЯ, РАБОТЫ и ПРОВЕДЕНИЯ КУЛЬТУРНОГО ДОСУГА
  • В шаговой доступности находятся:
    • Сетевые магазины
    • Аптеки
    • Фитнес-клубы
    • Торговые центры
    • Поликлиники
    • Яблоневый сад
    • Ландшафтный заказник Тёплый Стан
    • Троицкий и Коньковский пруды
    • Храм Живоначальной Троицы (Сергия Радонежского) конца XVII в.
  • Для детей дошкольного и школьного возраста:
    • Детский сад №730 (с ясельными группами)
    • Частная школа, детский сад «Путь зерна»
    • Средняя общеобразовательная школа №113 с дошкольным отделением
    • Школа № 170 имени А. П. Чехова
    • Школа №1405 «Вдохновение» с углубленным изучением предметов художественно-эстетического цикла
    • Школа №1273 с углубленным изучением английского языка
    • Школа с этнокультурным корейским компонентом
    • Вузы рядом:

      • Московский Университет МВД России
      • Российский государственный геологоразведочный университет имени Серго Орджоникидзе
      • Российская академия интеллектуальной собственности
      • Академические институты:
        • Центр акушерства, гинекологии и перинатологии им. академика В.И. Кулакова.
        • Институт биоорганической химии им. академиков М. М. Шемякина и Ю. А. Овчинникова Российской академии наук
        • Центр Цереброваскулярной Патологии и Инсульта , НИИ им. Н.И. Пирогова
      • Для активного отдыха:

        • 2 бассейна (ведомственные)
        • Каток «Хрустальный»
        • Спортивный комплекс клуба «Старт»
        • Фитнес-клуб «Olimpic Fitness» (спортивный, тренажёрный зал)
      ИДЕАЛЬНАЯ ТРАНСПОРТНАЯ ДОСТУПНОСТЬ
      • На авто или на общественном транспорте:
        Мгновенный выезд на МКАД - 3.5 км.
        Выезд на Ленинский проспект – 2 км.
        Профсоюзная улица – 600 м.
        ТТК – 9 км.
      • Пешком:

        м. Коньково – 7 минут (700 метров)
        Ландшафтный заказник Теплый Стан – 3 минуты (200 метров)
      Просторная 3-комнатная квартира
      в р-не КОНЬКОВО

      Цена 13 000 000 руб

      г. Москва, ул.Академика Арцимовича, д. 15, 3/6 этаж


      +7(999)925-55-06
      Екатерина



      Агентство недвижимости "На Петровке".
      Адрес: г.Москва, ул. Неглинная д.14 с.1

      Запишитесь на просмотр
      прямо сейчас!
      Заполняя форму, Вы даете согласие на обработку персональных данных.
      Квартира в собственности. Два взрослых собственника. Легкая альтернатива. Содействие в получении специальных условий и преференций по ипотеке.
      БРОКЕР
      • Екатерина Николаевна Беловодова

        Специалист по скоростным продажам жилой и коммерческой недвижимости. Маркетолог.
        Прошла обучение по авторской методике Александра Санкина "Скоростной метод продажи недвижимости".
        Образование - высшее.
        Опыт работы 18 лет.
        Место работы: АН «На Петровке»

        Моб. телефон: +7(999)925-55-06
      Made on
      Tilda